Thermenklinikum Mödling
Baustellen-Visite 205
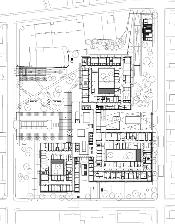
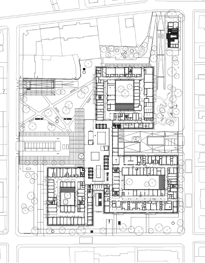
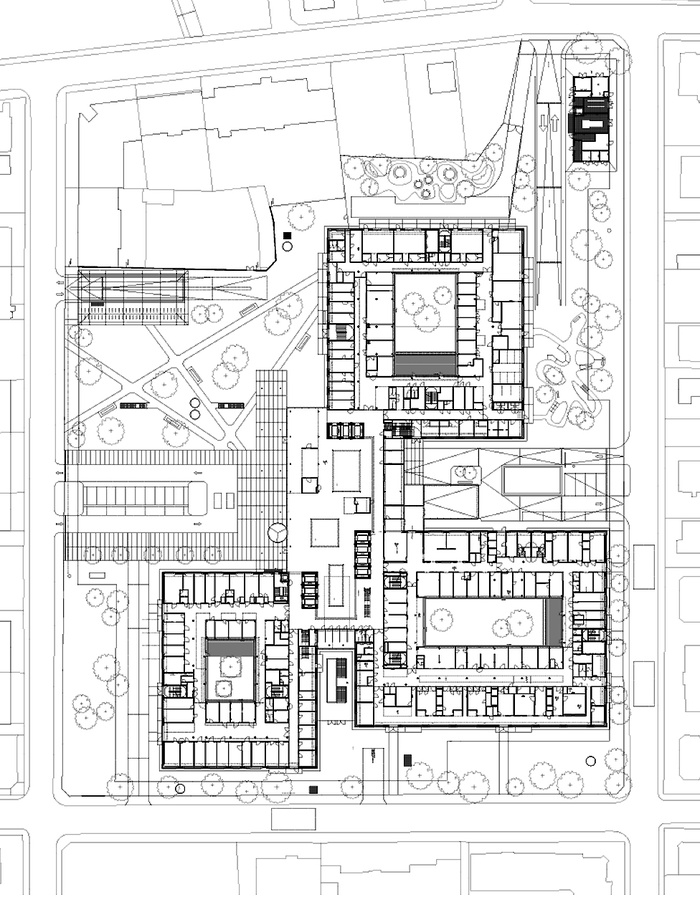
ExkursionSpitalsbauten zählen zu den komplexesten Planungsaufgaben unserer Zeit. Hier wird der Schwierigkeitsgrad noch gesteigert: Die Realisierung erfolgt in mehreren Etappen unter voller Aufrechterhaltung des Spitalsbetriebs.
An einem Standort nahe des Zentrums entstehen drei Pavillons verbunden mit Brücken und ein verglaster Eingangsbereich. Die 4-geschossigen Pavillons sind behutsam in einer Nachbarschaft die überwiegend aus Wohnhäusern besteht eingefügt. Die Materialwahl – Sichtziegel, Aluminium, Holz – verleiht den Bauten eine wohltuende, samtige Erscheinung. Text: Elise Feiersinger
Es führt Paul Katzberger, einer der planverantwortlichen Architekten.
Landesklinikum Thermenregion Mödling (so der offizielle Name)
Planung: Paul Katzberger, Loudon Habeler & Partner, Moser Architects, Franz Pfeil
Projektsteuerung: Delta Projektconsult
Wettbewerb: 2007
Bauphasen: 2
geplante Fertigstellung: 2019
Gesamtnutzfläche: 25.500 m2
voraussichtliche Baukosten: EURO 130.000.000
Auftraggeber: NÖ Landeskliniken-Holding
Statik: Klestil ZT GmbH
Bauphysik: Quiring Consultants
Freiraumplanung: Atelier Landschaft
Haustechnik: ZFG, ITGA
Eine Anmeldung zu dieser Veranstaltung ist nicht erforderlich.
Eine Veranstaltung der Österreichischen Gesellschaft für Architektur - ÖGFA
in Kooperation mit ORTE Architekturnetzwerk Niederösterreich.
